Smart Asset Investments
Ljutići, Malinska
Faza investicije
Zemljište
Idejno riješenje
Predana dokumentacija za GD
Građevinska dozvola
U gradnji
Uporabna dozvola
S velikim zadovoljstvom predstavljamo novi ekskluzivni projekt u mirnom naselju Ljutići, u blizini Malinske na otoku Krku. Projekt obuhvaća dvije elegantne samostojeće kamene kuće, osmišljene kako bi pružile savršen spoj autentičnog mediteranskog karaktera, suvremene arhitekture i vrhunske udobnosti.
Smještene u ugodnom i prirodnom okruženju, svega nekoliko minuta vožnje od mora i centra Malinske, ove rezidencije nude idealan balans privatnosti, funkcionalnosti i stila. Svaka kuća projektirana je s posebnom pažnjom prema detaljima, koristeći kvalitetne materijale i naglašavajući rustikalnu kamenu estetiku koja se savršeno uklapa u krajolik otoka Krka.
Prostrane okućnice s bazenima, hortikulturno uređeni vrtovi i pažljivo osmišljeni unutarnji prostori stvaraju ugodnu atmosferu za boravak tijekom cijele godine – bilo kao privatna oaza za odmor, obiteljski dom ili atraktivna investicija za turistički najam.
Ovaj projekt predstavlja skladan spoj tradicionalne gradnje, suvremenog komfora i mediteranskog načina života, postavljajući visoke standarde kvalitete i stanovanja u ovom dijelu otoka Krka.

Ljutići su malo i mirno naselje smješteno u zaleđu Malinske, na zapadnoj strani otoka Krka. Ovo područje poznato je po svojoj ugodnoj atmosferi, zelenom okruženju i autentičnom otočnom karakteru, što ga čini idealnim mjestom za sve koji traže privatnost i opušten način života, a istovremeno žele biti blizu mora i svih potrebnih sadržaja. Udaljeni svega nekoliko minuta vožnje od centra Malinske i njezinih uređenih plaža, Ljutići nude savršenu ravnotežu između mirnog života u prirodi i blizine turističkih, gastronomskih i kulturnih sadržaja. Okolica je obilježena tradicionalnim kamenim kućama, maslinicima i mediteranskom vegetacijom, što dodatno doprinosi autentičnom ambijentu ovog dijela otoka. Zahvaljujući svojoj lokaciji i sve većem interesu za kvalitetne nekretnine na otoku Krku, Ljutići postaju sve poželjnija destinacija kako za privatni odmor i cjelogodišnje stanovanje, tako i za investicije u turizam. Mir, priroda i blizina mora čine ovo naselje jednim od skrivenih dragulja malinskarskog područja.
Projektirano stanje
Kuća 1,2
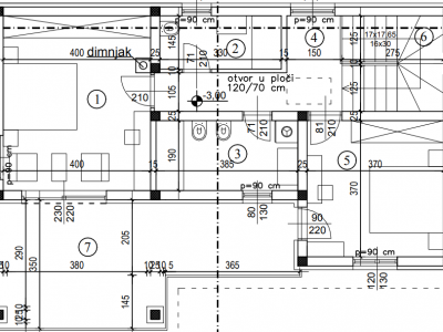
Tlocrt prizemlje
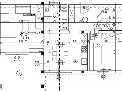
Tlocrt 1. kat
Svaka od kuće stoji na parceli površine približno 600 m², dok će nakon izgradnje ostati oko 350 m² uređene okućnice. Vanjski prostor bit će hortikulturno uređen, s bazenom na elektrolizu te posađenim starim maslinama koje dodatno naglašavaju autentičan otočni ugođaj.
Ukupna neto stambena površina svake kuće iznosi 138,21 m² (bruto 169,92 m²) i raspoređene su na dvije etaže.
Prizemlje, površine 71,96 m², koncipirano je kao otvoreni prostor koji objedinjuje dnevni boravak, kuhinju i blagovaonicu, stvarajući ugodan i svijetao prostor za boravak. Na istoj etaži nalaze se i hodnik, jedna spavaća soba, kupaonica te praktična utility prostorija/spremište. Iz dnevnog dijela izlazi se na prostranu natkrivenu terasu i uređenu okućnicu s bazenom.
Na katu, neto površine 67,15 m², smještene su dvije spavaće sobe, dvije kupaonice, hodnik i praonica, kao i velika natkrivena terasa odnosno balkon koji pruža dodatni prostor za opuštanje na otvrenom.
NETO POVRŠINA STANA: 138,21 m²
PARKING: 2 PM
Kuće će biti građene kvalitetnim materijalima te opremljena suvremenom opremom. Predviđeno je električno podno grijanje, dok će u spavaćim sobama biti postavljeni kvalitetni parketi. Stolarija će biti kombinacija PVC-a i aluminija s griljama, a u dnevnom boravku planiran je i kamin koji dodatno doprinosi toplini i atmosferi doma. Fasada obložena kamenom savršeno se uklapa u rustikalni stil karakterističan za ovaj dio otoka.
Otkrijte više detalja o ovom projektu. Naš tim stoji vam na raspolaganju za sva pitanja i organizaciju razgledavanja.













